当前位置: 中国铜陵网首页 >> 家居
62m²显大超100m²,最适合普通中国家庭的风格,没有之一
发表时间:2021-01-20 10:04:21  阅读:-   来源:互联网

今天是屋主曹先生来分享他在北京一人居的小天地,关于家的装修,简洁温馨有趣每个空间都不失贴合自己生活习惯的想法,没有特定设计风格,但主人的居住灵感显得房子更加有灵性

62m²显大超100m²,最适合普通中国家庭的风格,没有之一

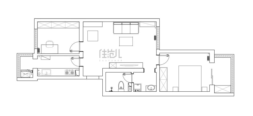
原始测量图


房屋位置: 北京 朝阳

房屋面积: 建面83㎡,套内62㎡

房屋户型: 2室1厅1厨1卫

装修套餐: 颜值革命3.0 A Plus系列

全部花费: 30万(硬装17万+家具电器13万左右)

常住人口: 1人

设计经理: 赵美佳


装修以“轻硬装重软装”的方式作为首选,曹先生不喜欢过多繁复装饰,反而追求简单舒适的生活状态,全屋以木色调温润质朴的色彩,来传达出屋主低调的品味。

62m²显大超100m²,最适合普通中国家庭的风格,没有之一

平面布置图


设计师结合屋主需求和想法,分配各空间功能和视觉一致,家里的每件物品的选取都不能随缘,全部都是曹先生精心挑选的,努力把家打造成理想家的模样。


01

玄关

62m²显大超100m²,最适合普通中国家庭的风格,没有之一

玄关结构图


屋主家玄关虽小,却能满足日常实实在在的各种需求,即使进门就是一览无余的餐客厅。


入户区木色与白色相撞色,编织剑麻地垫,中古风藤编换鞋凳,都会让大面积白色空间变得更有质感。


摒弃传统的玄关强收纳,屋主用超薄白色铁皮柜做鞋柜收纳轻盈好用,上面用透明密封盒收纳口罩清爽干净。


屋主对家居单品的要求追求风格统一,传统遮丑电表箱对屋主来说没有吸引力。


找遍全网直接定制了一款木质电表箱套件,细节中加入的金属元素点缀能挂能摆放,高颜值兼具实用性。


02

餐厅

62m²显大超100m²,最适合普通中国家庭的风格,没有之一

餐厅结构图


从入户区进来就是餐厅,红橡木长虹玻璃餐边柜重量级收纳担当,餐桌椅搭配黑金线条吊灯组合,无需过多的装饰,轻松营造出一个温馨舒适的用餐环境

62m²显大超100m²,最适合普通中国家庭的风格,没有之一

62m²显大超100m²,最适合普通中国家庭的风格,没有之一

白橡木餐桌椅组合是吱音家的一款叠桌,小户型友好,屋主平常一人食就是标准的方形桌省空间足够用。

62m²显大超100m²,最适合普通中国家庭的风格,没有之一

有朋友来家里聚餐或爸妈来家里小住时,直接抽出自带的隐藏桌板,方桌变长桌,使用面积能足足增加60%围坐6~8人都不成问题,只需1m²的餐厅区功能性齐全。

62m²显大超100m²,最适合普通中国家庭的风格,没有之一

62m²显大超100m²,最适合普通中国家庭的风格,没有之一

03

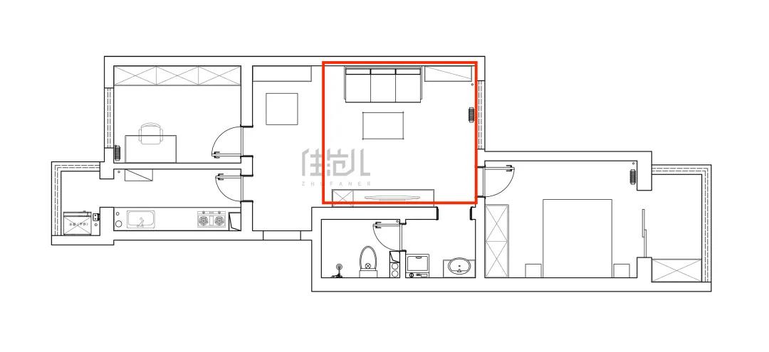
客厅

62m²显大超100m²,最适合普通中国家庭的风格,没有之一

客厅结构图


整个空间户型看起来相当规整,客厅与餐厅没有明显阻隔感,依旧延续白色+原木配色软装,沙发旁用高脚小圆桌做边几,摆上一幅装饰画丰富了整个空间色彩感。

62m²显大超100m²,最适合普通中国家庭的风格,没有之一

62m²显大超100m²,最适合普通中国家庭的风格,没有之一

不同于轻盈形态的家具,沙发特意选用了看上去敦实可爱的款式,曹先生简直夸爆!灵活多变的沙发造型,能满足不同状态下的居家享受

62m²显大超100m²,最适合普通中国家庭的风格,没有之一

标准形态,沙发坐垫完全收起来,满足正常坐靠。

62m²显大超100m²,最适合普通中国家庭的风格,没有之一

把沙发下方的层板抽出来,夏天的时候可以搭脚,坐着相对轻松很多。

62m²显大超100m²,最适合普通中国家庭的风格,没有之一

抽出层板,把沙发坐垫翻下来,直接变成一个可坐可躺的大沙发,围合性超有安全感,窝在沙发上看电视不要太爽!

62m²显大超100m²,最适合普通中国家庭的风格,没有之一

75寸大电视搭配210mm樱桃木电视柜,说起电视柜也是屋主选了很久才遇到的心头好。


一般210mm的电视柜以5~6腿的居多,曹先生找到唯一一款只有四脚的竖条纹木格栅状,简约大气。

62m²显大超100m²,最适合普通中国家庭的风格,没有之一

电视柜上摆放的是陕西博物馆青铜小分队手办,屋主直接入手了一套盲盒集齐觥大、觥二、饕餮、鸮、冷鸮、鸮尊、牺尊和凤鸟八只小可爱古物感十足。

62m²显大超100m²,最适合普通中国家庭的风格,没有之一

电视柜旁边的木质小推车一举多得,又能做玄关杂物的临时收纳,又能作为吃火锅时的上菜小推车。


屋主对于茶几没有任何执念,要不是喜欢喝茶看电视,一个小推车一样能代替茶几解决吃饭问题

62m²显大超100m²,最适合普通中国家庭的风格,没有之一

屋主把家里所有窗户全部换成了采光优秀的超大玻璃窗,阳光透过百叶窗就像生活的取景框,主灯选用松下可调吸顶灯非常亮堂。

62m²显大超100m²,最适合普通中国家庭的风格,没有之一

临窗是屋主花2100元定制的白蜡木收纳柜,柜体中国风镂空图案,上面摆放梅花金饰台灯和仿宋雀蓝花瓶等装饰,客厅角落的打造符合当下屋主闲适的心情,显得更灵动生机。

62m²显大超100m²,最适合普通中国家庭的风格,没有之一

62m²显大超100m²,最适合普通中国家庭的风格,没有之一

04

厨房

62m²显大超100m²,最适合普通中国家庭的风格,没有之一

厨房结构图


清新的薄荷绿橱柜和白色台面使厨房整体看起来更加宽敞明亮,有限环境里薄荷绿治愈显干净,夏天用视觉给这个空间降温更合适不过了

62m²显大超100m²,最适合普通中国家庭的风格,没有之一

屋主虽然不常做饭,该有的厨具电器一样不少,置物架、刀架、抹布架等收纳得井井有条。

62m²显大超100m²,最适合普通中国家庭的风格,没有之一

62m²显大超100m²,最适合普通中国家庭的风格,没有之一

橱柜内部一层收纳厨房小电器,一层用收纳袋和梯形盒收纳锅体,关上柜门就是一片清爽。

62m²显大超100m²,最适合普通中国家庭的风格,没有之一

厨房值得推荐的是这款双层垃圾桶,上层收纳垃圾,下层收纳日常囤下来的塑料袋,再也不用乱塞乱藏的,用的时候随取随用实实在在好用。

62m²显大超100m²,最适合普通中国家庭的风格,没有之一

62m²显大超100m²,最适合普通中国家庭的风格,没有之一

厨房阳台小空间刚刚好塞下一台小冰箱,动线合理高效,坐拥采光超好的明亮厨房,下厨房的心情都豁然开朗了不少。

62m²显大超100m²,最适合普通中国家庭的风格,没有之一

62m²显大超100m²,最适合普通中国家庭的风格,没有之一

05

书房

62m²显大超100m²,最适合普通中国家庭的风格,没有之一

书房结构图


书房兼次卧,把办公和次卧功能结合在一起的空间,延续空间主材的木色调书桌椅和玻璃柜门书柜,收藏画作直接摆放在地上,生活休闲随意可切换空间的重要元素。

62m²显大超100m²,最适合普通中国家庭的风格,没有之一

62m²显大超100m²,最适合普通中国家庭的风格,没有之一

父母偶尔来小住的几天,曹先生会把主卧留给父母,自己会在书房用一张舒适度爆棚的床垫直接打地铺一样,变临时客房一样好睡

62m²显大超100m²,最适合普通中国家庭的风格,没有之一

62m²显大超100m²,最适合普通中国家庭的风格,没有之一

06

卫生间

62m²显大超100m²,最适合普通中国家庭的风格,没有之一

卫生间结构图


卫生间格局很棒直接做干湿分离不成问题,由于屋主不想在卫生间做两道门遮挡,索性干区直接用门帘做半隔断,与地面铺设的黑白相间小花砖相得益彰不失趣味性。

62m²显大超100m²,最适合普通中国家庭的风格,没有之一

62m²显大超100m²,最适合普通中国家庭的风格,没有之一

白色浴室柜搭配同色收纳筐,懒角落的双层白色脏衣篮与洗衣机并排摆放,干区利用率满分。

62m²显大超100m²,最适合普通中国家庭的风格,没有之一

62m²显大超100m²,最适合普通中国家庭的风格,没有之一

屋主选用小天鹅11kg波轮洗衣机,型号是TBJ110-8188WUADCLT,0污染一体桶,洗衣同时毛絮都顺着水排走了,衣物不被毛絮困扰的干净程度曹先生相当满意。

62m²显大超100m²,最适合普通中国家庭的风格,没有之一

62m²显大超100m²,最适合普通中国家庭的风格,没有之一

湿区与干区风格一致,由于有门的存在,水花阻隔性满分。

62m²显大超100m²,最适合普通中国家庭的风格,没有之一

62m²显大超100m²,最适合普通中国家庭的风格,没有之一

07

卧室

62m²显大超100m²,最适合普通中国家庭的风格,没有之一

卧室结构图


走进卧室,右手边一整面白色嵌入式通顶柜,内部根据季节用收纳袋做分隔,左边柜体收纳秋冬衣物,右边收纳夏季衣物整齐有序。

62m²显大超100m²,最适合普通中国家庭的风格,没有之一

62m²显大超100m²,最适合普通中国家庭的风格,没有之一

62m²显大超100m²,最适合普通中国家庭的风格,没有之一

可灵活移动的落地衣架,木质床头柜和中性色调绘睡床品,搭配温热的床头吊灯,卧室空间显得更为沉稳宁静。

62m²显大超100m²,最适合普通中国家庭的风格,没有之一

62m²显大超100m²,最适合普通中国家庭的风格,没有之一

62m²显大超100m²,最适合普通中国家庭的风格,没有之一

卧室与阳台用黑色玻璃门做隔断,隔热保温窗帘一拉仿佛隔绝繁华喧嚣,阳台是晾衣和收纳空间,白色隐形通顶柜作为玄关的收纳补充,放行李箱和其他物品再好不过。

62m²显大超100m²,最适合普通中国家庭的风格,没有之一

62m²显大超100m²,最适合普通中国家庭的风格,没有之一

阳台上的纱帘屋主选用的是土耳其纱帘,手感非常好丝滑细腻,透出的光线温暖柔和。

62m²显大超100m²,最适合普通中国家庭的风格,没有之一

简单是一种生活的态度,屋主对生活品质的追求绝不将就,全屋选品从尺寸到细节,提升全屋氛围感满分。


推荐阅读:one时尚秀

图片推荐
关于我们 | 联系我们 | XML地图 | 网站地图TXT | 版权声明

Copyright 2021 中国铜陵网 版权所有 本网拒绝一切非法行为 欢迎监督举报 如有错误信息 欢迎纠正